
賃料 |
7.8万円 |
共益費/管理費 |
3,500円 |
---|---|---|---|
敷金 |
- |
礼金 |
1ヶ月 |
保証金 |
- |
敷引_償却 |
- |
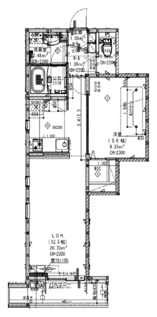
間取り |
1LDK |
築年月 |
2024/01(築1年) |
面積 |
40.99m²(12.39坪) |
階建 |
3階/3階建 |
所在地 |
前橋市本町3丁目 |
||
周辺環境 |
JR前橋駅まで 徒歩9分 650m |
お電話でのお問い合わせ
物件番号:3982
お電話でお問い合わせの際は、物件番号をお伝えください。
027-223-5133
営業時間:AM9:30~PM6:00 AM10:00~PM6:00(日・祝祭日)
定休日:毎週 水曜日
ポイント
POINT

最上階3階角空き! 築浅!築1年! 高速Wi-Fi標準装備!インターネット無料(1G、セキュリティー込) JR前橋駅まで徒歩圏(徒歩9分)♪

モニター付インターホン! オートロック!

プロパンガス

◆◆◆◆◆◆交通◆◆◆◆◆◆
国道50号沿いです
◆◆◆◆◆◆ショッピング◆◆◆◆◆◆
コンビニ、ミニストップ前橋本町店まで徒歩4分(約260m) スーパー、AコープJAファーマーズ朝日町まで徒歩12分(約900m) けやきウォーク前橋まで徒歩14分(約950m)
◆◆◆◆◆◆教育・学校・公園◆◆◆◆◆◆
フィットネスFIT365前橋朝日まで徒歩9分(約650m)

※ケイアイクラブ(火災保険・インターネット使用料・24時間安心サポート、月額2,750円)加入のこと ※短期解約違約金アリ
その他のオススメ物件はこちらから
物件詳細DETAIL
建物構造 |
木造 |
向き |
南東 |
---|---|---|---|
現況 |
空室 |
入居時期 |
2025/11 上旬 |
間取詳細 |
LDK12.5、洋5.6 |
総戸数 |
21戸 |
保険等 |
要 2年 |
保証会社 |
必須 初回保証料:総賃料の50%、月額900円 |
契約期間 |
2年 |
更新料 |
新賃料1ヶ月 |
取引態様 |
仲介 |
仲介手数料 |
1.1ヶ月 |
駐車場 |
空有 |
学区 |
中川小学校
みずき中学校 |
諸費用 |
クリーニング費用(初期費用) 66,000円
鍵交換費用(初期費用) 27,500円
ケイアイクラブ(月額) 2,750円
契約事務手数料(初期費用) 16,500円 |
入居費用(概算) |
366,630円 |
特色/設備 |
エアコン、バストイレ別、室内洗濯機置場、バルコニー、角部屋、駐車場1台込、システムキッチン、オートロック、陽当り良好、宅配ボックス、シャンプードレッサー、追焚バス、浴室乾燥機、対面式キッチン、CATV、フローリング、二階以上、最上階、インターネット無料 |
||
情報更新日 |
2025年10月19日 |
次回更新予定日 |
2025年10月20日 |
※掲載されている物件データが現状と異なる場合は現状を優先します。
周辺地図MAP

有限会社 アール・イー・ビーCOMPANY
所在地 |
群馬県前橋市表町二丁目25番15号 |
||
---|---|---|---|
免許番号 |
群馬県知事免許(8)第5155号 |
||
会員 |
一般社団法人 群馬県宅地建物取引業協会
|
||
電話番号 |
027-223-5133 |
FAX番号 |
027-243-5773 |
営業時間 |
AM9:30~PM6:00 AM10:00~PM6:00(日・祝祭日) |
定休日 |
毎週 水曜日 |